Check what kind of warehouse or production hall you can build

Even if you are not yet sure what kind of hall you need, you can explore different scenarios.

Check what hall makes sense on your plot — warehouse, production, cold storage, or energy-efficient. The system analyzes each option, shows possible layouts, and estimates costs.

No login. No obligations.

You choose the building type and size

You select the hall type, its basic dimensions, height, and key plot parameters. You can test different variants and see how changes in length, width, or height affect function, floor area, and spatial logic. The configurator analyzes the available site, distances to plot boundaries, and basic planning constraints. Based on the entered data, the system proposes a possible building layout, calculates usable area, and presents an estimated construction cost. Everything happens in real time — without registration, obligations, or formalities. It is a fast way to assess investment potential and make informed decisions before the design stage.

We design and price

Transparent. Precise. No surprises. You receive a complete design with cost estimation. Clear scope and clear terms.

How does our platform work?

You choose the hall type — standard, timber, or production — and basic parameters: length, width, height. You immediately see what fits on your plot and how to best use the space. An intuitive system guides you step by step. A fast way to start your investment without barriers or unnecessary consultations.

What do we offer?

You choose the hall type — standard, timber, or production — and basic parameters: length, width, height. You instantly see what fits on your plot and how to use the space efficiently. An intuitive step-by-step system. A fast investment start without formalities.

Who is our platform for?

For investors, plot owners, and developers who need a quick assessment of site potential. The system allows immediate verification of development possibilities and preparation for design or decision-making discussions.

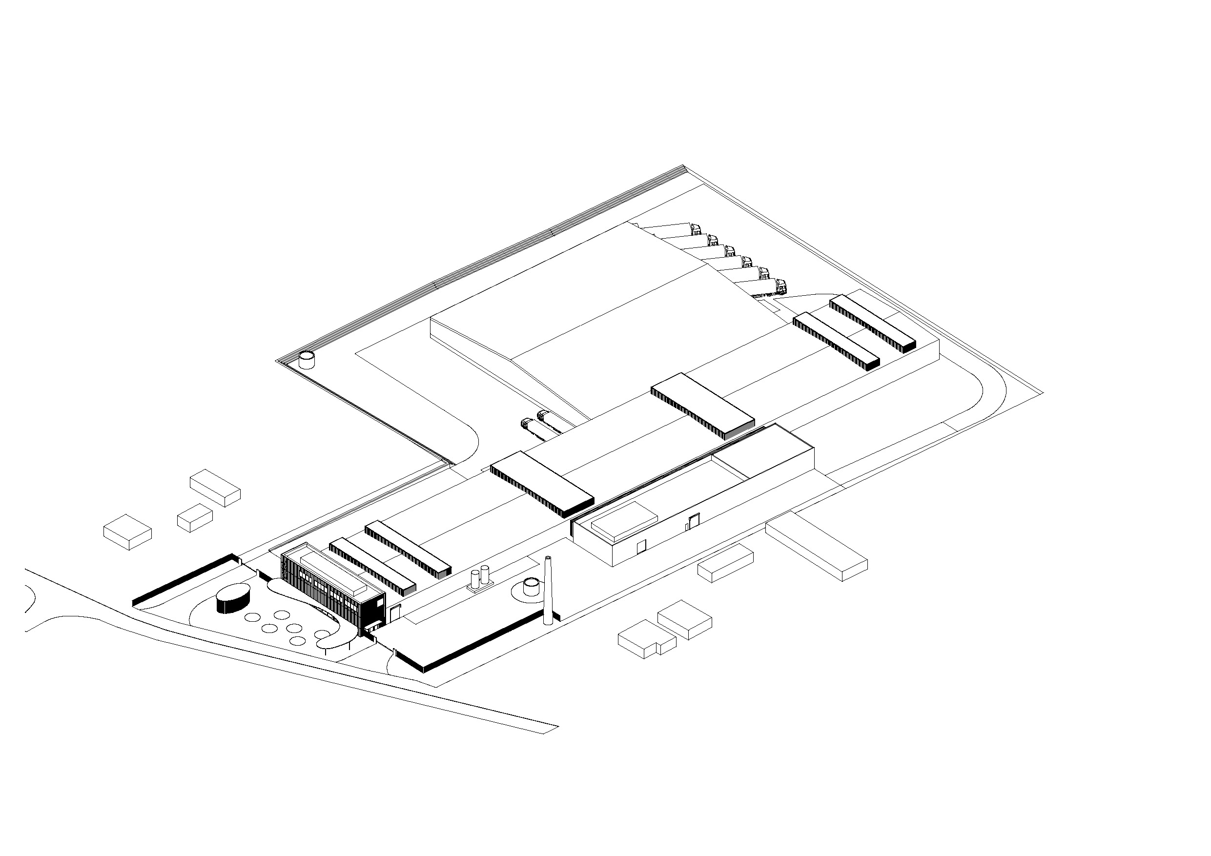
Factory picture

We build, or you can execute it yourself

Build with our subcontractors or with your own team. We deliver documentation, prefabricated elements, and technical support. The rest is up to you.

Icon

4. Built for the long term

Thoughtful. Flexible. Future-ready. A hall is an investment that grows with your business. Expand, adapt, and reconfigure.

Icon

How does our platform work?

Fast analysis of factory or plant expansion potential — saving time and money while supporting sustainability. For over 20 years we have supported clients in designing and supervising industrial buildings. Now we provide a tool that allows immediate online assessment of industrial plots or expansion options for existing facilities. The platform visualizes regulation-compliant buildings and proposes energy-efficient, environmentally responsible solutions.

What do we offer?

Innovative platform features — experience and sustainability in service of industrial buildings. Real-time interactive site analysis. Compliance with regulations and sustainability standards — including photovoltaic systems, water recovery, and energy-efficient technologies. 3D visualizations. Preliminary cost estimation supporting sustainable budgeting.

Who is our platform for?

For developers, investors, and industrial landowners. For anyone who needs a fast site potential assessment or plans an expansion, with a strong focus on sustainability. Backed by years of experience, the platform supports responsible development and minimizes environmental impact.

Factory picture